Livoti Residence - Holmdel, NJ
A second-home interior design proposal developed at RH, focused on creating a warm, relaxed environment through tonal layering, soft forms, and material continuity designed for retreat and ease.
Role: Interior Designer
RH Interior Design
Design Inspiration
Palette
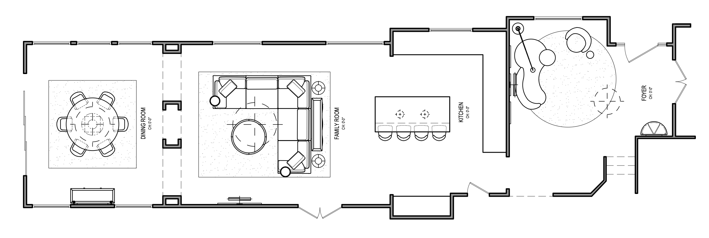
Layout
Foyer
Foyer
Foyer
Family Room
Family Room
Dining Room
Office